I LOVE OPTIC
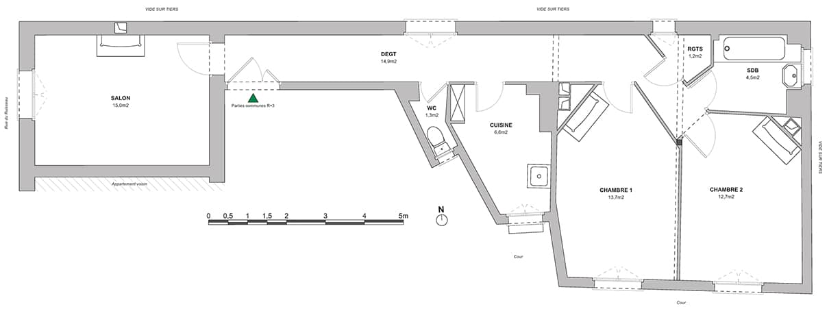
Rénovation et aménagement d’un appartement (Paris 2ème). S’agissant d’un investissement locatif en meublé, le réaménagement de cet appartement familial a été conçu “clés en main”, mobilier, luminaires et rideaux inclus, en optimisant le budget et la durée du chantier.
Juillet / Octobre 2019
Surface : 105 m2
Budget : 150 000€



COMPRENDRE LE PROJET
Rénovation et aménagement d’un appartement (Paris 2ème). S’agissant d’un investissement locatif en meublé, le réaménagement de cet Rénovation et aménagement d’un appartement (Paris 2ème). S’agissant d’un investissement locatif en meublé, le réaménagement de cet Rénovation et aménagement d’un appartement (Paris 2ème). S’agissant d’un investissement locatif en meublé, le réaménagement de cet




